当前位置: 首页 > 产品大全 > 248平米简欧六居,128万筑梦成都优雅家

248平米简欧六居,128万筑梦成都优雅家

248平米简欧六居,128万筑梦成都优雅家

在成都这座兼具时尚与休闲气息的城市,一套248平米的六居室大宅,以128万的装修预算,完美诠释了简欧风格的精致与大气。本案不仅提供了丰富的装修效果图参考,更通过专业的平面设计,展现了空间规划与生活美学的深度融合。

一、 设计理念:简约线条勾勒欧式典雅
简欧风格,摒弃了传统欧式的繁复与厚重,保留了其经典的线条、对称布局和高雅气质。在本案例中,设计师运用简洁明快的石膏线条装饰墙面与天花,搭配金属、水晶灯饰等细节,营造出轻盈、明亮且富有层次感的居住氛围。整体色调以米白、浅灰、暖咖等中性色为主,局部用深蓝、墨绿或香槟金点缀,沉稳中不失活力。

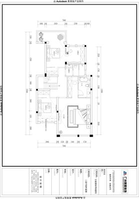
二、 平面布局:功能分区明晰,动线流畅
248平米的空间为六居室提供了充裕的规划可能。平面设计是本案的灵魂:
1. 公共区域一体化:客厅、餐厅与开放式西厨相连,形成开阔通透的家庭核心区。大型落地窗引入充足自然光,视觉上进一步放大空间。
2. 动静完美分离:将卧室区(包括主卧套房、两间次卧、儿童房及客房)集中规划在相对静谧的区域,与客厅、娱乐室等动区有效分隔,保障家庭成员休息与活动的互不干扰。
3. 主卧套房彰显尊贵:配备独立衣帽间、宽敞卫浴及休闲阳台,功能齐全,私密性强,成为主人的专属奢享空间。
4. 多功能房间设计:除了基本卧室,额外规划了书房/家庭办公室、以及一个可根据需求变为影音室、健身房或茶室的灵活空间,充分满足现代家庭的多元化需求。

三、 效果图亮点解析
1. 客厅:浅色大理石纹理瓷砖通铺,一张质感厚重的浅灰色绒面沙发成为视觉焦点,背景墙采用对称的简欧线条造型,壁炉设计或装饰画增添了温馨与艺术感。
2. 餐厅:圆形餐桌搭配皮质餐椅,上悬璀璨的水晶吊灯,营造出优雅的用餐仪式感。餐边柜兼具收纳与展示功能。
3. 卧室:主卧背景墙常采用软包或简约护墙板设计,搭配高品质床品与柔和灯光,氛围舒适宁静。儿童房则色彩更活泼,融入卡通或自然元素。
4. 厨房与卫浴:厨房采用定制橱柜,将电器嵌入式设计,整洁美观。卫浴空间干湿分离,配备浴缸与独立淋浴房,采用仿大理石瓷砖与智能卫浴产品,兼顾美观与实用性。

四、 128万预算构成与成都本地化建议
128万的总投入在成都市场属于中高端装修档次。预算分配大致涵盖:
- 基础装修与水电改造(约30%):确保隐蔽工程与结构安全。
- 主材购置(约35%):包括地板、瓷砖、橱柜、卫浴、门窗等,建议选择知名品牌保证质量。
- 全屋定制家具(约20%):充分利用空间,实现收纳与风格的统一。
- 软装、灯具及电器(约15%):画龙点睛之笔,提升整体格调与生活品质。

在成都,选择装修公司时,应注意其是否熟悉本地气候(如湿度)对建材的影响,以及在设计上能否巧妙融合室内外景观(如若有阳台或庭院)。合理利用本地建材市场和物流优势,能在保证效果的同时更好地控制成本。

****
这套248平米的简欧六居室案例,通过精心的平面设计与风格把控,在128万的预算内,实现了空间利用率、功能性与美学价值的最大化。它不仅是一组可供参考的效果图大全,更是一份为成都乃至全国大户型家庭量身定制的优雅生活蓝图,证明了简欧风格在现代大宅中历久弥新的魅力。


如若转载,请注明出处:http://www.wzbxzp.com/product/14.html

更新时间:2026-04-16 22:37:40