当前位置: 首页 > 产品大全 > 免费获取优质三房户型家装CAD设计图 编号34346862平面设计详解与下载指南

免费获取优质三房户型家装CAD设计图 编号34346862平面设计详解与下载指南

免费获取优质三房户型家装CAD设计图 编号34346862平面设计详解与下载指南

在家庭装修的筹备阶段,拥有一份专业、详尽的CAD平面设计图是至关重要的一步。它不仅是施工团队的精准蓝图,也是业主规划空间布局、预算和风格的视觉基础。本文将围绕“三房户型家装CAD平面图设计图(编号34346862)”这一资源,详细介绍其设计特点、应用价值,并提供安全的获取途径。

一、 设计图核心价值:从图纸到理想家园

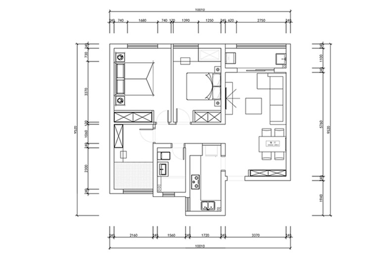
编号34346862的设计图,作为一份专为三房户型打造的DWG格式CAD文件,其价值远超一份简单的图纸。

  1. 专业规划的起点:该设计图通常由专业设计师或设计团队完成,严格遵循人体工程学和住宅设计规范。它清晰展示了房屋的原始结构、承重墙、门窗洞口及管道位置,为后续的任何改造提供了不可动摇的基准。
  2. 空间优化的蓝图:对于常见的三室两厅一厨一卫或类似户型,图纸中会详细规划出客厅、餐厅、卧室、书房、厨房、卫生间等功能区的布局。业主可以直观地看到家具摆放、动线设计(如从客厅到厨房、从卧室到卫生间的路径),从而评估布局的合理性与舒适度,避免在实际装修中出现空间浪费或动线交叉干扰。
  3. 预算与沟通的工具:基于准确的平面尺寸,业主可以更精确地计算建材(如地板、涂料)用量,进行初步的预算规划。这份图纸也是业主与设计师、施工方沟通的最高效工具,确保各方对设计意图的理解完全一致,极大减少误解和返工。

二、 编号34346862设计图可能涵盖的设计亮点

虽然无法看到具体图纸,但一份优质的三房户型CAD设计图通常会包含以下层次和细节:

  • 图层管理规范:图纸会按墙体、门窗、家具、标注、水电等不同元素分图层绘制,方便使用者单独查看、编辑或打印特定部分。
  • 尺寸标注详尽:所有房间的开间、进深,墙体厚度,门窗尺寸都会进行完整标注,数据精准。
  • 家具与设备布置:会合理布置床、沙发、橱柜、洁具等基本家具和设备的图块,体现空间尺度感。
  • 潜在改造示意:可能会包含对非承重墙的改造建议(如拆除某段墙体做开放式厨房或扩大空间),展示户型优化的可能性。

三、 如何安全、合法地下载与应用DWG格式设计图

“免费下载”是吸引人的关键词,但在获取资源时务必谨慎,以保护个人信息安全和尊重知识产权。

  1. 选择正规平台:优先访问知名的专业设计网站、图库平台或正规的设计社区。这些平台通常会对上传的资源进行基本审核,安全性更高,并且会注明资源的授权方式(如仅供学习参考)。避免点击来源不明的小广告或链接。
  2. 理解使用权限:明确“免费下载”的具体条款。大多数免费资源仅供个人学习、参考或用于非商业性质的方案设计练习。切勿直接用于商业项目或声称是原创作品,以免侵犯原作者权益。
  3. 核实文件安全:下载的DWG文件在使用前,建议先用可靠的杀毒软件进行扫描。在AutoCAD或中望CAD等软件中打开时,注意是否提示包含不明脚本或链接。
  4. 作为灵感与基础:对于业主而言,下载到的图纸最核心的用途是“参考”。您可以借鉴其空间划分思路、家具尺寸比例和布局逻辑,然后结合自家户型的实际尺寸、采光情况和家庭需求,与专业设计师一同创作出完全定制化的方案。

四、 给业主的实用建议

  1. 因地制宜:即使户型相似,楼栋朝向、采光、家庭成员结构的不同也意味着设计必须个性化。将下载的图纸作为“模板”,但思考如何调整以适应自身生活。
  2. 软件支持:要查看和编辑DWG文件,需要安装AutoCAD、中望CAD、浩辰CAD等专业软件,或使用一些支持DWG的免费看图工具。
  3. 咨询专业人士:最终确定施工方案前,务必聘请有资质的室内设计师或工程师对方案进行审核,确保结构安全、水电规划合规。

编号34346862的三房户型CAD设计图是一个宝贵的参考起点。通过合法合规的渠道获取它,并智慧地加以利用,您就能在装修之旅中更有把握,一步步将纸上的线条,构筑成心中温暖、舒适、实用的理想家园。在搜索时,建议使用更完整的关键词组合,如“三房两厅 CAD平面图 免费参考图”,以便在各大设计平台或论坛上更精准地找到相关资源。


如若转载,请注明出处:http://www.wzbxzp.com/product/8.html

更新时间:2026-04-16 06:59:24